 |
Referenzprojekt Wolfgang Bauer:
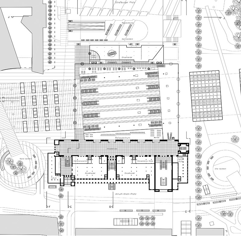
Stuttgarter Hauptbahnhof
Wettbewerbsgewinn 4. Preis
Mitarbeit Wolfgang Bauer bei Murphy/Jahn Inc. Architects, 1997
Entwurf und CAD Teamleitung
Die Streckenführung am Hauptbahnhof Stuttgart soll in den nächsten Jahren komplett geändert werden. Die existierenden Bahnsteige werden stillgelegt und zur Stadterweierungsfläche umgewandelt. Der Bahnverkehr wird statt dessen in der Querrichtung unterirdisch unter der Innenstadt geführt.
Die unterirdischen neuen Bahnsteige werden mit dem existierenden historischen Bahnhofsgebäude von Paul Bonatz durch eine elegante Glashalle verbunden - Alt und Neu stehen gleichwertig nebeneinander.
Die Erschliessung der Gleise erfolgt auf Strassenniveau mit Brücken über die Bahnsteige. Der Bahnhof kann so als Durchgang zum neuen Stadtquartier genutzt werden. Er wird Teil der Stadt.
|
|
 |
 |
 |
 |
|