 |
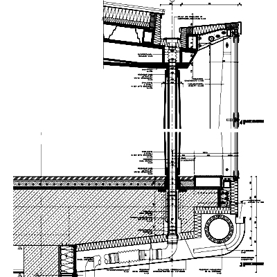
Referenzprojekt Wolfgang Bauer
Erweiterung des Terminal 1 am Flughafen Köln/Bonn
Entwurfsplanung in freier Mitarbeit für Murphy/Jahn Inc. Architects, Chicago
Projektleitung Genehmigungs-und Ausführungsplanung in freier Mitarbeit für Architekturbüro Schommer, Bonn
Bausumme 18 Mio. Euro
Fertigstellung 12/2004
|
|
 |
|
 |
|
 |
 |
|
|
|